Industrial premises at Nam Trang Cat Industrial Park, Hai Phong
Detailed information
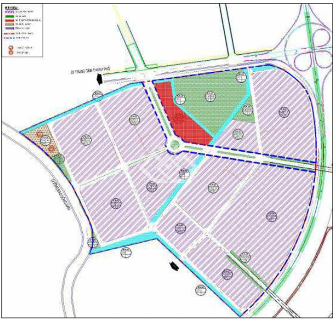
I. Overview
Nam Trang Cat Industrial Park, Hai Phong is positioned as a general industrial park listing linked to Hai Phong. It can support industrial expansion, manufacturing setup, warehouse use or long-term land planning depending on the underlying asset.
II. Location and asset context
Current reference location: : Hải Phòng là trung tâm của khu vực duyên hải Bắc Bộ, nơi có tổng dân số trên 20 triệu người. Thành phố có 1,2 triệu lao động trong đó 75% lao động đã qua đào tạo. Trên địa bàn thành phố có hệ thống 4 trường đại học, hơn 60 trường cao đẳng, trung cấp dạy nghề. Mức lương tối thiểu vùng thuộc khu vực I là 4.680 VND/tháng..
The property is being prioritized within the Hai Phong portfolio because it matches the city’s industrial growth, logistics connectivity and investor demand profile.
III. Suitable users
Suitable for investors, manufacturers and industrial users assessing transfer, acquisition or expansion opportunities in Hai Phong.



