Khu Công nghiệp Đại Đăng tỉnh Bình Dương
Detailed information
Cổng vào Khu Công nghiệp Đại Đăng
Khu Công nghiệp Đại Đăng được chính thức thành lập theo GPĐT số 453/GP-BD do UBND tỉnh Bình Dương cấp ngày 18/10/2005, được cấp Giấy chứng nhận đầu tư số do Ban Quản Lý các Khu công nghiệp Bình Dương chứng nhận thay đổi lần thứ 1 ngày 28/04/2008 và Giấy chứng nhận đầu tư số thay đổi lần thứ 6 ngày 26/03/2010.
I. Tổng quan về Khu Công nghiệp Đại Đăng
Với tổng vốn đầu tư 26 triệu USD, Khu Công nghiệp Đại Đăng có tổng diện tích là 274,3565 ha, là một trong sáu khu công nghiệp nằm trong dự án Khu liên hợp Công nghiệp – Dịch vụ – Đô thị Bình Dương (gồm các KCN Đại Đăng, Sóng Thần III, Kim Huy, VSIP II, Phú Gia và Đồng An II). Chủ đầu tư của dự án là Công ty TNHH Xây Dựng và Đầu Tư Đại Đăng, đồng thời là doanh nghiệp có 100% vốn nước ngoài.
Dưới đây
xin giới thiệu về Khu Công nghiệp Đại Đăng như sau:
Tên
: Khu Công nghiệp Đại Đăng
Chủ đầu tư
: Công Ty TNHH Xây Dựng và Đầu Tư Đại Đăng
Địa điểm
: Phường Phú Tân, thành phố Thủ Dầu Một, tỉnh Bình Dương
Quy mô
: 274,3 ha
Thời gian vận hành
: 50 năm (2005 – 2055)
Tỷ lệ lấp đầy
: 47%
Ngành nghề thu hút đầu tư
: Chế biến gỗ và trang trí nội thất; lắp ráp cơ khí; chế biến nông sản; điện, điện tử; may mặc, bao bì, da giày; lắp ráp, sửa chữa máy nông lâm nghiệp và giao thông vận tải.
Phối cảnh 3D Khu Công nghiệp Đại Đăng
II. Vị trí địa lý của Khu Công nghiệp Đại Đăng
Khu Công nghiệp Đại Đăng nằm tại trung tâm vùng kinh tế trọng điểm phía nam bao gồm: Thành phố Hồ Chí Minh. Bình Dương, Đồng nai, Bà Rịa -Vũng Tàu, Tây Ninh, Long An, Bình Phước, với hệ thống cơ sở hạ tầng hòan chỉnh, nối kết với các tuyến đường huyết mạch quốc gia và các trung tâm kinh tế thương mại cả nước rất thuận lợi, cũng như tiếp cận nhanh chóng các cảng biển, cảng đường bộ và cảng hàng không, do đó tiết kiệm được nhiều chi phí và thời gian vận chuyển, đặt biệt là chi phí xuất nhập khẩu hàng hóa.
Kết nối giao thông tại Khu Công nghiệp Đại Đăng
Khoảng cách
Cách thị xã Thủ Dầu Một tỉnh Bình Dương: khoảng 4 km
Cách trung tâm TP. Hồ Chí Minh: khoảng 30 km
Cách thành phố Biên Hòa: 16 km
Cách sân bay quốc tế Tân Sơn Nhất: 22 km
Cách cảng Sài Gòn: 32 km
Cách ga Sóng Thần: khoảng 12 km
Cách Tân Cảng: 20 km
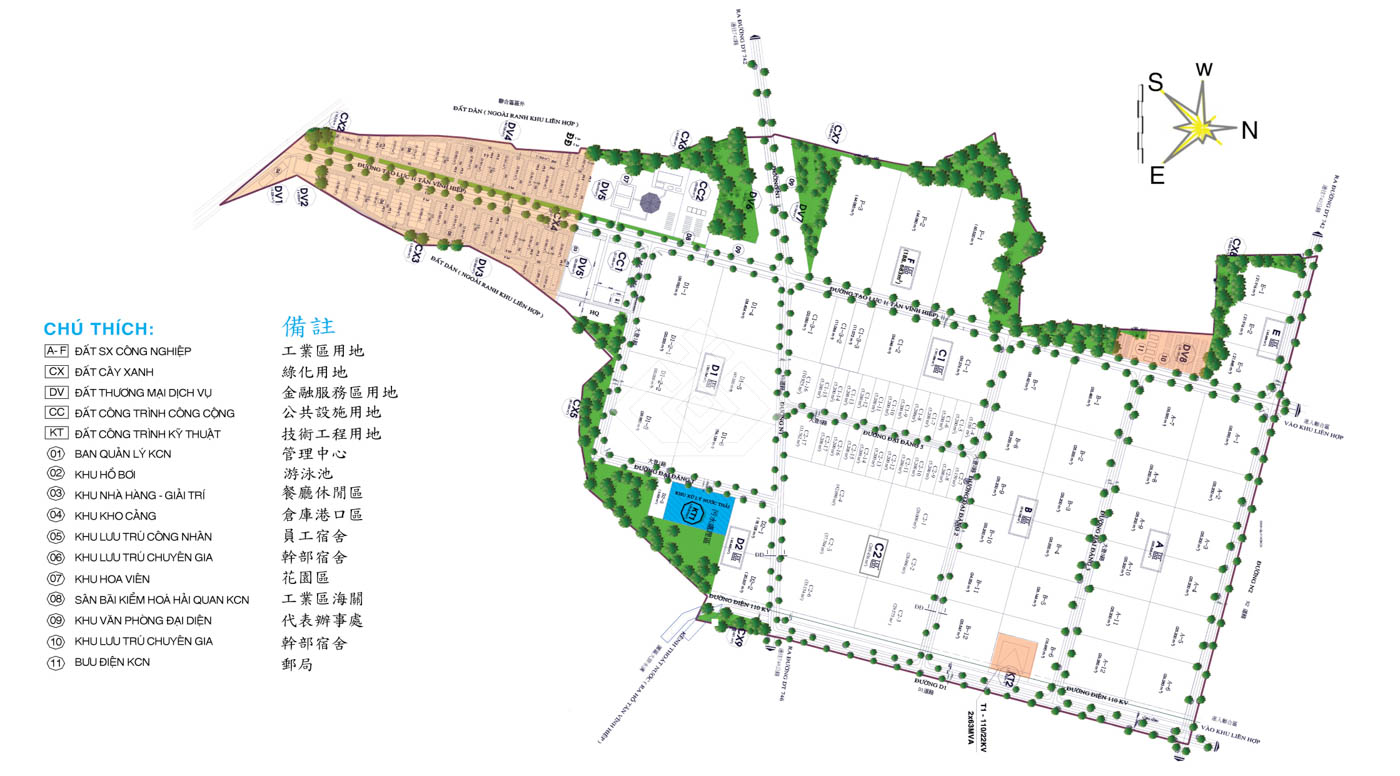
III. Cơ sở hạ tầng trong Khu Công nghiệp Đại Đăng
Khu Công nghiệp Đại Đăng được đầu tư xây dựng cơ sở hạ tầng hoàn thiện từ sớm nên đã thu hút được nhiều nhà đầu tư trong và ngoài nước:
Giao thông nội khu
:
Hệ thống giao thông nội bộ Khu Công nghiệp Đại Đăng được thiết kế hợp lý theo hình ô cờ dọc theo các lô đất đảm bảo việc giao thông trong toàn KCN được thông suốt và thuận tiện.
Trục đường trung tâm rộng 38,5m, các trục đường nhánh rộng 30m. Toàn bộ các đường bộ đều được thiết kế và thi công tuân thủ chặt chẽ các quy định của quốc gia và được hòan thiện bằng bêtông nhựa Asphalt. Các đường bộ cũng được trang bị hệ thống chiếu sáng cao áp hòan chỉnh và thẩm mỹ cũng như các hệ thống đèn, bảng tín hiệu.
Hệ thống giao thông nội bộ Khu Công nghiệp Đại Đăng
Hệ thống cấp điện
:
Nguồn điện được cung cấp 24/24 đến Khu Công nghiệp Đại Đăng được lấy từ lưới điện quốc gia, với công suất từ 50MW đến 100 MW/ngày. Các đường dây điện chính sẽ được phát triển thành mạng lưới dọc theo các trục đường giao thông để cung cấp điện cho các tram biến áp của các nhà máy trong KCN.
Hệ thống cấp nước sạch
:
Nước sạch sử dụng trong Khu Công nghiệp Đại Đăng được cung cấp từ nhà máy nước sạch Bình Dương tới hàng rào nhà máy bằng hệ thống cấp nước tiêu chuẩn quốc tế với công suất lên đến 50.000 m3/ngày đêm.
Hệ thống xử lý nước thải
:
Nước thải trong Khu Công nghiệp Đại Đăng sẽ được từng nhà máy trong khu xử lý sơ bộ đạt tiêu chuẩn nước thải loại B theo tiêu chuẩn Quốc gia trước khi xả vào nhà mày xử lý nước thải của KCN với công suất thiết kế 5.300 m3/ngày đêm (giai đoạn 1 là 1.000 m3/ngày đêm).
Khu xử lý nước thải Khu Công nghiệp Đại Đăng
Hệ thống PCCC
:
Khu Công nghiệp Đại Đăng được lắp đặt hệ thống cảnh báo, phòng chống và chữa cháy tuân thủ chặt chẽ các quy định Quốc gia. Các họng cấp nước chữa cháy được lắp đặt tại các đầu mối giao thông nội khu, và tại mọi nhà máy nhằm đảm bảo tác dụng bảo vệ hiệu quả tòan khu khỏi các sự cố cháy nổ.
Hệ thống viễn thông
:
Mạng cáp quang bưu chính viễn thông được thiết kế lắp đặt ngầm dọc các tuyến đường Khu Công nghiệp Đại Đăng, phù hợp tiêu chuẩn quốc tế, được thiết kế lắp đặt 1000 tuyến điện thoại, đáp ứng nhu cầu sử dụng của các nhà máy trong KCN.
Tiện ích khác
:
Khu Công nghiệp Đại Đăng sẽ đầu tư phát triển hệ thống cơ sở hạ tầng hỗ trợ để đáp mọi nhu cầu khác như: khu vực nhà ăn uống, giao nhận, kho vận, ngân hàng, giải trí, bưu điện, khu nhà lưu trú cho chuyên gia và công nhân, siêu thị…
Hiện nay Khu Công nghiệp Đại Đăng đang tích cực triển khai Quy hoạch Dự án khu nhà ở cao cấp, bao gồm cả các tiện ích như: dịch vụ giải trí, trung tâm thương mại… Dự kiến sau khi dự án này được đưa vào hoạt động sẽ thu hút số lượng lớn người đến sinh sống và làm việc, mang lại nhiều thuận lợi cho việc phát triển Khu Công nghiệp Đại Đăng.
IV. Chi phí đầu tư trong Khu Công nghiệp Đại Đăng
Phí quản lý: 0,0667 USD/m2/tháng
Phí xử lý nước thải: 0,25 USD/m3 (tính 80% tổng lượng nước sử dụng)
Giá điện: Theo quy định hiện hành của Công ty Điện lực Bình Dương
Giá nước: Theo quy định hiện hành của Công ty cấp nước Bình Dương (8.000 VND/m3)
Cước viễn thông: Theo quy định hiện hành của Bưu điện Bình Dương (20.000 VND/máy)
V. Chính sách ưu đãi đầu tư của Khu Công nghiệp Đại Đăng
Các doanh nghiệp trong Khu Công nghiệp Đại Đăng được hưởng chính sách ưu đãi đầu tư như sau:
Miễn thuế TNDN 100% trong 2 năm đầu và 50% cho 4 năm tiếp theo;
Hỗ trợ nhanh chóng cho doanh nghiệp: Đăng ký thành lập Công ty – Đăng ký thành lập Chi nhánh – Thủ tục xin cấp giấy chứng nhận đầu tư – Đăng ký xây dựng nhà xưởng.
VI. Doanh nghiệp hoạt động trong Khu Công nghiệp Đại Đăng
Đến nay Khu Công nghiệp Đại Đăng đã thu hút được hàng chục dự án sau nhiều năm đi vào hoạt động với tổng số vốn thu hút lên đến 315 tỷ đồng.
Dưới đây là một số doanh nghiệp quốc tế đang hoạt động trong Khu Công nghiệp Đại Đăng:
STT
Tên Doanh Nghiệp
Ngành nghề
Quốc gia
1
Công Ty TNHH Jinfuyu
Sản xuất đồ bảo hộ lao động
Đài Loan
2
Công Ty TNHH Entire Coupling
Sản xuất và gia công các loại van, ống nối, vòng đệm, giá đỡ, móc treo bằng kim loại, nhựa
Đài Loan
3
Công Ty TNHH Việt Nam Janie Color Plastics
Sản xuất các sản phẩm nhựa và cao su tổng hợp, thuốc nhuộm màu và các chất màu khác
Đài Loan
4
Công Ty TNHH Glory Glass Beads
Sản xuất gia công thuỷ tinh, pha lê dùng làm trang sức va trang trí nội thất
Đài Loan
5
Công Ty TNHH Thiết Bị Lạnh Honsin
Sản xuất máy lạnh trung tâm, quạt thông gió, tấm chống bám bụi, chống khuẩn, tấm cách nhiệt, lắp đặt hệ thống điện lạnh trung tâm
Đài Loan
6
Công Ty TNHH U-House Enterprise
Sản xuất các loại ván, ván trần, cửa, khung bao, nẹp viền bằng nhựa và cao su, các sản phẩm làm bằng nhựa và cao su; sản xuất các loại máy móc thiết bị và khuôn để sản xuất các loại sản phẩm bằng nhựa, cao su
Đài Loan
7
Công Ty TNHH Nikken Super Abrasive
Sản xuất, gia công các loại vải nhám, giấy nhám, vật liệu mài, vật liệu đánh bóng, vật liệu cắt và thuỷ mài
Đài Loan
8
Công Ty TNHH Thép Zipson
Sản xuất các loại van kim loại và nhựa, các linh kiện bằng kim loại có liên quan
Đài Loan
9
Công Ty TNHH Quốc Tế J&F
Sản xuất các loại ngăn kệ kho hàng, thiết bị băng tải, thiết bị nâng hạ và bốc xếp. Lập trình máy vi tính. thiết bị văn phòng. phụ tùng xe ôtô, xe gắn máy bằng kim loại. Sản xuất linh kiện điện tử
Đài Loan
10
Công Ty TNHH Vietnam E.C.I Elastic
Sản xuất, gia công các loại dây bằng dệt đàn hồi và không đàn hồi (dây đai, băng viền, dãi băng trang trí). Móc và lỗ khuy, miếng lót áo ngực. Các sản phẩm từ cao su (miếng dán silicon, dây dát mỏng, dây in nhiệt, dây in mẫu và dây đai). Nhuộm sợi các sản phẩm trên. Sản xuất, gia công khuôn vải các loại
Đài Loan
11
Công Ty TNHH Colour Billion
Sản xuất và gia công các loại mực in, các loại sơn phục vụ cho ngành may mặc, giày da, giấy và gỗ. Dịch vụ thiết kế mẫu mã xe hơi, gắn máy
Đài Loan
12
Công Ty TNHH Máy Móc Cơ Khí Kung Jui
Sản xuất, gia công linh kiện xe cơ giới, xe tải, xe hơi, xe máy, lâm, nông ngư co, thuyền bè. Sản xuất, gia công và xuất khẩu các loại linh phu kiện kim loại đúc ép, đúc cát và dập nóng
Đài Loan
13
Công Ty TNHH Việt Nam Yu Shun
Sản xuất khuôn mẫu bằng kim loại, dây khoá kéo và hàng gia dụng bằng giấy, nhựa
Đài Loan
14
Công Ty TNHH Double Premium
Sản xuất, gia công thiết bị ngành xi mạ, ngành cơ khí, thiết bị xử lý nước, thiết bị làm lạnh; sản xuất và gia công các sản phẩm bằng kim loại
Đài Loan
15
Công Ty TNHH Kingship Scales
S ản xuất các loại cân, các loại sản phẩm điện tử. Sản xuất và gia công các sản phẩm bằng kim loại. Thiết kế, chế tạo và thi công trang trí nội thất; thiết kế thi công tạo cảnh quan, vườn kiểng
Đài Loan
16
Công Ty TNHH Hua Song
Sản xuất gia công vật liệu làm vỏ bọc khuôn, vật liệu làm khuôn bằng sắt, thép, kim loại nguyên chất, hợp kim sắt, hợp kim cao cấp, chất phụ gia, ti-tan và hợp kim ti-tan; dây kim loại đặc biệt và que hàn, hợp kim dùng trong y tế và không gian, vật liệu 3 C (Sic), hợp kim đồng và nhôm; chất khoáng, chất kết dính
Đài Loan
17
Công Ty TNHH Power Joy Vn
Sản xuất các loại nguyên liệu hoá chất tổng hợp (acrylic resin, urethane resin, adhesive made of synthetic resin, polyurethane resin, TPU resin, silastic resin, accessory ingredient, adiu-vant, assistant) và nhựa keo; các loại băng keo, băng đai, miếng dán keo; sản xuất sơn và bột TiO2 chuyên dùng phục vụ ngành công nghiệp
Đài Loan
18
Chi Nhánh Công Ty TNHH Fotai Vn
Sản xuất bao container, bao tráng film, bao dệt PP, túi xốp và gia công kính phản quang
Đài Loan
hy vọng có thể cung cấp thông tin hữu ích tới Quý độc giả. Để được tư vấn chi tiết về cơ hội đầu tư tại Khu Công nghiệp Đại Đăng, liên hệ ngay với chúng tôi qua:
– Tư vấn và xúc tiến đầu tư bất động sản công nghiệp
Hotline:
Website:
www.redsunland.vn
Email:
đây



